
Всем привет!
Сегодня хочу поделиться с вами хроникой одного моего объекта, наконец-то все подходит к концу!
Начала я заниматься им еще осенью 2013 года.
Вот так он выглядел изначально. Дом состоит из двух этажей в скандинавском стиле.
Немного фото изнутри
1-й этаж

Переход с1-го на 2-й этаж

2-й этаж
Клиенты люди консервативные, поэтому внутренний дизайн выбрали в классическом стиле. Но со временем, пока мы работали над эскизным проектом, вкусы менялись и у нас в итоге получился, некий, микс из стилей, так как в доме будут жить разные поколения от 20 до 55 лет. Поэтому каждый выбрал то, что ему по вкусу. Но основные помещения и 1-й этаж остались неизменно в классике.
Ну что же, с чего все начиналось!
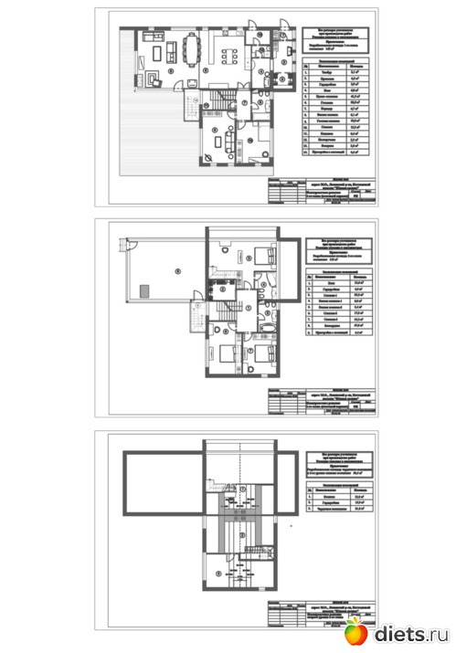
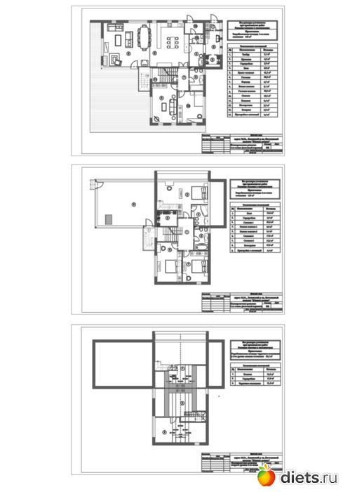
Планировка по каждому этажу. Определились быстро.

Далее сделали черновые эскизы.
Гостиная с кухней на 1-ом этаже

Спальня хозяйская на 2-ом этаже. Мы умудрились ее сделать двухуровневой. Соорудили небольшой кабинетик на верху...

Спальня дочери. Так же двухуровневая. Сверху санузел и гардеробная.

И спальня сына.
На первом этаже у нас есть еще две комнаты, мы не стали делать эскизы, так как они были второстепенные с ними и так было все понятно. Но потом много чего поменялось. И об этом я расскажу вам в следующих статьях.